SPECIALTY &COMPONENT DESIGN
SEE THE DIFFERENCE SEE THE INNOVATION LIVE THE EXPERIENCE IT'S DOP ENGINEERING
what we have to offer!
Custom Aluminum Trellises in Aventura, Florida
Wood Pergola Structural Compliance
Custom Curved Glazing System
Rooftop Mechanical Equipment Attachment
Ocean Delray Condo Skylights
Custom Aluminum Pergola in Weston
Custom Decorative Metal Panel Design
Patio Enclosure in Tamarac
Entrance Canopy Design
Cantilever Stair and Glass Railings in Jupiter
Structural Features of a Miami Home
Metal Solutions for Gulliver Academy Project
Custom Steel Stair Railings
Interior Glass Safeguard Wall
Make-A-Wish Southern Florida
Cantilever Steel Stair
Our team specializes in designing custom components and innovative solutions that enhance the functionality and aesthetics of your structures. We understand the importance of creating unique and personalized designs that reflect your vision and goals.
At DOP Engineering, we go beyond traditional approaches and embrace a collaborative process. We work closely with clients, architects, and contractors to gain a deep understanding of your project requirements. By actively listening to your needs and aspirations, we are able to deliver tailored solutions that exceed your expectations.
Our Capabilities in Specialty and Component Design
Stairs and Railings
We offer customized designs for stairs and railings that prioritize safety while enhancing the aesthetic appeal of your building.
Fencing Systems
Our design solutions for fencing systems provide privacy, security, and a visually appealing boundary for residential or commercial spaces.
Outdoor Living Structures
Create stunning outdoor spaces with our design expertise in pergolas, canopies, decks, and other structures that offer shade and protection from the elements.
Design for Flood Loading
We specialize in designing structures that can withstand flood loading, ensuring safety and resilience in flood-prone areas.
Mechanical Equipment
Our expertise lies in designing supports for mechanical equipment, ensuring proper installation and preventing damage to both the equipment and the surrounding structure.
Glass and Glazing
Our comprehensive glass and glazing services encompass sunrooms, skylights, curtain walls, and glass railings. We ensure structural integrity, aesthetic enhancement, and compliance with safety standards.
We believe that exceptional design should not compromise functionality, and vice versa. Our team is committed to striking the perfect balance between form and function, ensuring that your structures not only meet your specific requirements but also leave a lasting impression.
Contact us today to discuss your project needs and embark on a collaborative journey with our dedicated team of professionals. Let us guide you through the design process, offering innovative solutions and expert guidance every step of the way. Together, we can create structures that not only meet your specific requirements but also exceed your expectations. Experience the power of custom component design and let DOP Engineering transform your vision into reality
Explore more of our projects
Rooftop Mechanical Equipment Attachment






Project Type: Mechanical Equipment Attachment
Location: Miami, Florida
Client: Private
DOP Engineering was hired to provide structural design and documentation for a rooftop mechanical equipment attachment in a shopping plaza. The client, a pharmacy owner, needed to securely install a generator on the existing concrete roof.
Scope of Work
Our engineers developed drawings and calculations for:
- A structural curb system for the mechanical equipment attachment.
- Openings in the slab for required ductwork.
- A new aluminum guardrail system around the perimeter.
Design Considerations
All structural solutions were designed to meet the 2023 Florida Building Code. This included addressing wind loads, fall protection, and ensuring adequate support over double-tee concrete systems to maintain rooftop safety and code compliance.
Key Features
- Curb design and anchor layout to secure the unit.
- Integration with existing structural elements.
- Lightweight aluminum guardrails.
- Built-in corrosion protection and durability.
This project highlights DOP Engineering’s ability to deliver tailored solutions, combining safety, code compliance, and long-term reliability.
Services: Mechanical Equipment Attachment, Structural Design, Structural Drawings, Guardrail Design
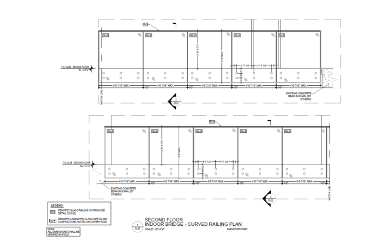
Cantilever Stair and Glass Railings in Jupiter








Project Type: Stairs & Railings
Location: Jupiter, Florida
Project Overview
DOP Engineering is proud to unveil a recent project featuring a cantilever steel staircase and custom glass railings designed with precision and functionality in mind. This project showcases engineering excellence through meticulous design, careful material selection, and attention to detail.
Cantilever Steel Staircase
In the first place, the centerpiece of the project is a sleek cantilever steel staircase, supported by a hidden structural column connected to a cantilevered beam. This innovative design allows for an open, minimalist look while maintaining structural integrity and safety. With this intention, our team focused on optimizing the connections, welds, and anchors to ensure durability and stability.
Custom Glass Railings
- Curved Glass Railing: A stunning architectural element featuring laminated glass composed of tempered glass layers and a robust SGP interlayer, providing enhanced strength, safety, and aesthetics.
- Stair Glass Railing: Designed specifically for the steel staircase, this railing combines laminated glass with tempered glass layers and an SGP interlayer for durability and a sleek, modern look.
- Top Finish: Each railing is topped with a 1″x1″ stainless steel U-channel, ensuring a clean, polished finish that enhances both durability and appearance.
Modern Design Meets Engineering Precision
As a result, this project reflects the perfect balance of structural engineering and architectural design, creating a space that is both functional and visually striking. The cantilever staircase and glass railings complement the modern aesthetic of the property while meeting the highest safety standards.
Given these points, we are thrilled to have delivered a solution that combines innovation, craftsmanship, and attention to detail for our client in Jupiter, Florida. Visit DOP Engineering’s to explore more of our innovative projects and custom solutions.
Services: Structural Design, Structural Drawings, Specialty & Component Design, Stairs & Railings