





Project Type: Custom metal solutions
Location: St. Petersburg, Florida
Client: FENEX
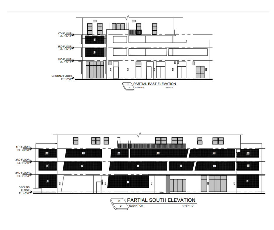
DOP Engineering collaborated with FENEX to design perforated aluminum panels for a custom project in St. Petersburg, Florida. Not only do these decorative panels add aesthetic value, but they also provide functional benefits, such as improved airflow and shading. As a result, they are a versatile solution for modern architectural projects.
The panels, crafted from 0.032″ thick aluminum with 50% porosity, allow for optimized airflow. At the same time, they maintain structural integrity to ensure durability in outdoor environments.
Because aluminum is rust-resistant and lightweight, it guarantees long-term performance in harsh weather conditions. Additionally, the material’s strength ensures that the panels can withstand environmental wear and tear.
Using a combination of thick continuous aluminum angles and secure connections, we carefully attached the panels to the host structure. This ensures maximum stability and strength over time.
We made sure that every detail, from embedment into concrete to specific connection points, was meticulously calculated. Consequently, this approach met both functional and aesthetic needs.
This project showcases DOP Engineering’s expertise in designing custom metal solutions that blend aesthetics with durability, ensuring high performance in all conditions.
Services: Structural Design, Structural Drawings, Facade Engineering, Specialty & Component Design