


Location: Coral Gables, Florida.
Project Type: Residential Addition and Retrofit.
Client: Blank Design and Architecture.
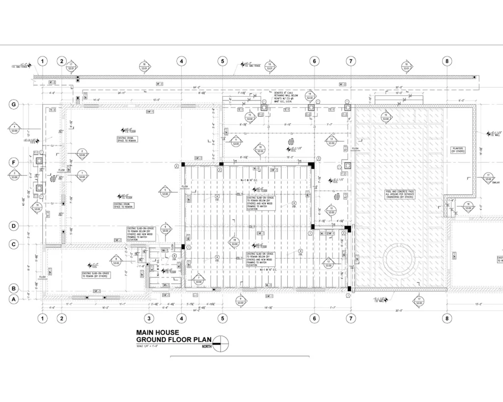
DOP Engineering provided the structural design for this residential addition, interior retrofit and accessory building in Coral Gables. The project blended new construction with the existing structure, requiring a seamless transition between both systems.
The existing home was supported on wall footings with a crawl space, while the new addition was built on a slab-on-grade foundation. CMU walls and a wood truss roof formed the main structure, with the new roof featuring a parapet to match the updated architectural style.
To enhance the outdoor space, DOP Engineering also designed a rear canopy adjacent to the pool area. Our team developed custom concealed connections to maintain a clean aesthetic while ensuring structural integrity. Additionally, a small retaining wall was designed to manage a grade difference near the pool, providing both stability and visual harmony with the landscape.
Although DOP Engineering did not handle the structural design of the pool itself, the team coordinated closely with the design professionals to ensure compatibility between the pool renovation, retaining wall, and surrounding structures.
This project reflects the balance between functionality and design detail that defines DOP Engineering’s approach to residential work, combining precise engineering with architectural intent.
Services: Structural Design, Structural Drawings, Custom Homes, Addition, Retrofit.